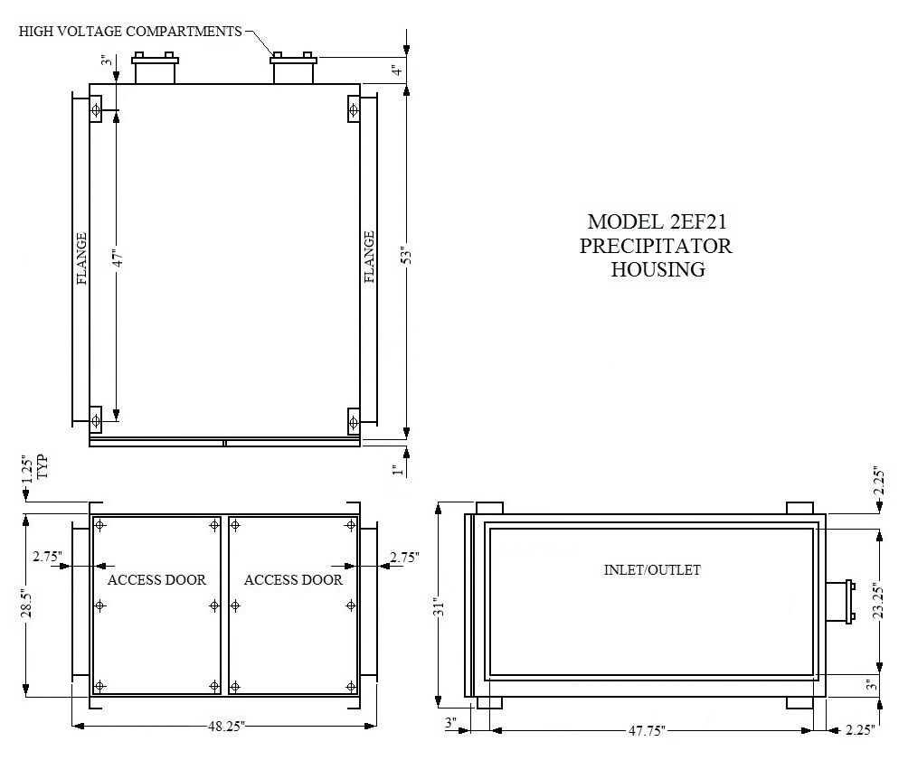
Model 2EF21
2-pass ESP with
TWO collection cells per pass


|
Collection Cell |
|
Power supply |
|
|
|
|
|
Dimensions: 25 wide x 25 high x 17 long |
|
Input Power: 220 VAC, 25 A Single Phase Output Power: 2000 Watt Dimensions: 28 wide x 18 high x 22 deep |